Trong bất kỳ công trình nào, phần móng luôn đóng vai trò quyết định đến độ bền vững lâu dài. Với những công trình dân dụng quy mô vừa và nhỏ, móng đơn là lựa chọn quen thuộc nhờ tính kinh tế, dễ thi công và phù hợp với nhiều điều kiện địa chất. Tuy nhiên, để hiểu đúng và áp dụng hiệu quả loại móng này, cần nhìn nhận một cách đầy đủ từ bản chất, cấu tạo đến cách tính toán và bố trí cốt thép.
Bản chất của móng đơn trong kết cấu công trình
Móng đơn là loại móng nông, được thiết kế để chịu tải cho một cột riêng lẻ hoặc một cụm cột nhỏ. Tải trọng từ cột sẽ truyền trực tiếp xuống nền đất thông qua bản móng có diện tích đủ lớn, nhằm đảm bảo áp lực không vượt quá sức chịu tải của đất.

Điểm cốt lõi của móng đơn không nằm ở hình dạng mà ở nguyên lý làm việc: phân tán tải trọng theo phương thẳng đứng xuống nền đất. Chính vì vậy, loại móng này đặc biệt phù hợp với các công trình như nhà phố, nhà cấp 4, nhà 2–3 tầng hoặc các công trình có tải trọng vừa phải và nền đất tương đối ổn định.
Trong thực tế, nếu lựa chọn đúng điều kiện áp dụng, móng đơn không chỉ giúp tối ưu chi phí mà còn rút ngắn đáng kể thời gian thi công.
Cấu tạo móng đơn không đơn giản như cách gọi
Dù mang tên “đơn”, nhưng cấu tạo của móng đơn lại là sự kết hợp của nhiều lớp làm việc đồng thời. Phía dưới cùng là lớp bê tông lót, thường sử dụng mác thấp để tạo mặt phẳng thi công và hạn chế mất nước xi măng. Lớp này không chịu lực chính nhưng lại đóng vai trò nền tảng cho toàn bộ kết cấu phía trên.
Phần quan trọng nhất là bản móng – nơi trực tiếp tiếp nhận và phân tán tải trọng xuống đất. Bản móng thường có dạng vuông hoặc chữ nhật, được tính toán dựa trên tải trọng và sức chịu tải của nền đất.
Phía trên bản móng là cổ móng (đài móng), nơi liên kết trực tiếp với cột. Đây là khu vực chịu lực tập trung nên yêu cầu bố trí thép và cấu tạo phải đảm bảo khả năng truyền lực ổn định.
Trong nhiều công trình, hệ giằng móng còn được bổ sung để liên kết các móng đơn lại với nhau. Điều này giúp hạn chế lún lệch và tăng độ ổn định tổng thể.
Thép móng đơn và nguyên tắc bố trí khi thi công

Nếu bê tông chịu nén tốt thì thép chính là thành phần giúp móng chống lại lực kéo và uốn. Với móng đơn, nội lực uốn xuất hiện do phản lực của nền đất, vì vậy thép đóng vai trò quyết định đến khả năng làm việc của kết cấu.
Thông thường, thép móng đơn được bố trí theo hai phương vuông góc ở lớp dưới – đây là lớp chịu lực chính. Đường kính thép phổ biến dao động từ D10 đến D16, tùy thuộc vào tải trọng và kích thước móng.
Khoảng cách giữa các thanh thép cần được tính toán hợp lý, thường nằm trong khoảng 100–200 mm. Việc bố trí quá dày sẽ gây lãng phí, nhưng nếu quá thưa sẽ làm giảm khả năng chịu lực.
Một yếu tố thường bị xem nhẹ nhưng lại rất quan trọng là lớp bê tông bảo vệ. Lớp này không chỉ giúp chống ăn mòn cốt thép mà còn đảm bảo khả năng làm việc lâu dài của móng trong môi trường ẩm ướt dưới đất.
Nguyên lý tính toán móng đơn trong thực tế
Việc tính toán móng đơn không dừng lại ở việc chọn kích thước theo kinh nghiệm, mà cần dựa trên các thông số cụ thể của công trình và nền đất.
Trước tiên là xác định tải trọng từ cột truyền xuống, bao gồm tải trọng bản thân công trình và tải sử dụng. Sau đó, tiến hành khảo sát hoặc tra cứu sức chịu tải của nền đất tại vị trí xây dựng.
Từ hai yếu tố này, diện tích bản móng sẽ được xác định sao cho áp lực truyền xuống đất không vượt quá giới hạn cho phép. Đây là bước quan trọng nhất, vì nếu tính sai sẽ dẫn đến lún không đều hoặc phá hoại nền móng.
Sau khi xác định kích thước, cần tiếp tục kiểm tra các điều kiện về chọc thủng tại chân cột, độ bền uốn của bản móng và thiết kế cốt thép phù hợp. Một móng đơn đạt yêu cầu không chỉ đủ rộng, mà còn phải đủ dày và đủ thép để đảm bảo an toàn trong suốt quá trình sử dụng.
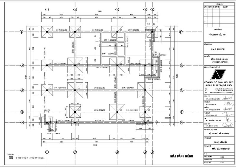
Bản vẽ móng đơn và những điểm cần lưu ý

Bản vẽ móng đơn là tài liệu quan trọng giúp chuyển từ thiết kế sang thi công thực tế. Một bản vẽ đầy đủ thường bao gồm mặt bằng móng, mặt cắt và chi tiết cốt thép.
Mặt bằng móng thể hiện vị trí và kích thước từng móng trong tổng thể công trình. Mặt cắt giúp hình dung rõ chiều sâu chôn móng, các lớp cấu tạo và cao độ liên quan. Trong khi đó, bản vẽ cốt thép cung cấp thông tin chi tiết về đường kính, khoảng cách, cách neo và nối thép.
Khi đọc bản vẽ, cần đặc biệt chú ý đến cao độ đáy móng, kích thước bản móng và cách bố trí thép. Đây là những yếu tố ảnh hưởng trực tiếp đến chất lượng thi công.
Móng đơn và sự liên quan tới móng mềm và móng cốc
Trong thực tế kỹ thuật, móng đơn thường được xem là một dạng móng mềm. Điều này có nghĩa là độ cứng của móng nhỏ hơn so với nền đất, nên khi chịu tải, móng sẽ biến dạng theo nền. Áp lực dưới đáy móng vì thế không phân bố đều mà thay đổi theo độ lún.
Bên cạnh đó, móng đơn còn có một biến thể phổ biến là móng cốc. Đây là dạng móng có phần đài được thiết kế như một “hốc” để đặt chân cột, thường sử dụng trong các công trình lắp ghép hoặc nhà xưởng.
Móng cốc giúp việc thi công cột trở nên nhanh chóng, chính xác hơn, đồng thời đảm bảo khả năng liên kết ổn định giữa cột và móng.
Kết luận
Móng đơn là giải pháp nền móng tưởng chừng đơn giản nhưng lại đòi hỏi sự hiểu biết kỹ thuật rõ ràng để áp dụng hiệu quả. Từ việc xác định tải trọng, lựa chọn kích thước đến bố trí cốt thép, mỗi bước đều ảnh hưởng trực tiếp đến độ bền của công trình. Nếu được thiết kế và thi công đúng cách, móng đơn hoàn toàn có thể đáp ứng tốt yêu cầu cho nhiều loại nhà ở và công trình dân dụng.
Để đảm bảo chất lượng kết cấu ngay từ phần móng – nơi chịu lực quan trọng nhất, việc lựa chọn vật liệu thép đạt chuẩn là yếu tố không thể bỏ qua. Bạn có thể tham khảo thêm các sản phẩm thép xây dựng chất lượng cao, phù hợp cho từng hạng mục tại website https://thepdaibang.com/ để tối ưu hiệu quả và độ bền cho công trình của mình.

Nguyễn Thế Tôn nổi tiếng với khả năng tư vấn và giải quyết các vấn đề kỹ thuật phức tạp trong ngành thép. Ông luôn sẵn sàng hỗ trợ khách hàng trong việc lựa chọn vật liệu phù hợp, tối ưu hóa chi phí và đảm bảo chất lượng công trình. Với phương châm “Chất lượng tạo dựng niềm tin,” Nguyễn Thế Tôn không ngừng nỗ lực nâng cao chất lượng dịch vụ và sản phẩm, mang đến cho khách hàng sự hài lòng tuyệt đối. Sự tận tâm và chuyên nghiệp của ông đã giúp Thép Đại Bàng trở thành một trong những địa chỉ uy tín hàng đầu trong lĩnh vực thép xây dựng. Nguyễn Thế Tôn cam kết tiếp tục cống hiến và đồng hành cùng khách hàng, góp phần xây dựng những công trình bền vững và an toàn.
Thông tin liên hệ:
- Website: https://thepdaibang.com/
- Email: [email protected]
- Địa chỉ: 166M Nguyễn Thành Vĩnh, khu phố 6, Quận 12, Hồ Chí Minh, Việt Nam

